Строительство Проектирование загородных домов из газобетона, керамоблоков   КОМФОРТ+  класса 
РАССЧИТАТЬ СМЕТУ ЛЮБОГО ПРОЕКТА

ПРОЕКТИРОВАНИЕ ИНДИВИДУАЛЬНОГО ДОМА | ЦЕНА

Проектирование включает в себя - помощь в подборе проекта дома высокопрофессиональным архитектором, получения от клиента полной информации о строительной площадки - кадастровой | спутниковой карты участка - отрисовка проекта дома в объеме с учетом привязки на местности (привязка габаритов дома в участке), поэтажные планы, план фундамента, план кровли, экспликация полов, спецификация заполнения оконных и дверных проемов, вентиляционные стояки, маркировочные планы, разрезы в осях основные, фасады в осях, основные строительные показатели, теплотехнический расчет, размещение элементов инженерных систем по проекту - розетки, выключатели, световые приборы, ввода коммуникаций в дом, котел, радиаторы отопления, перспективы цветовое решение - цветные 3D виды дома, BIM-модель дом, различные варианты фасада и материалов кровли, ламинации окон - подбор вместе с вами.
НАЧНИТЕ ПРОЕКТИРОВАНИЕ ПРЯМО СЕЙЧАС
► для больших коттеджей, домов со сложным проектированием архитектор может обсудить с клиентом повышение фиксированной ставки проекта.

35 000 ₽

ЗА ИНДИВИДУАЛЬНЫЙ ПРОЕКТ ВСЕГО ДОМА | ФУНДАМЕНТА

Оплата работы архитектора

по фикс. ставке за проект

Мы можем обсуждать ваш дом в чате прямо сейчас. 


ЛУЧШЕ ОДИН РАЗ УВИДЕТЬ

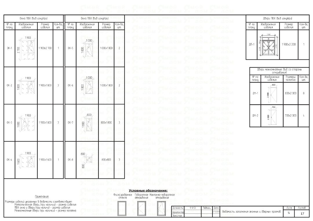
В качестве проекта-иллюстрации, который покажет результат проектирования дома, приводим проект СТОУН ДОМ🔎

Габариты дома - 10х13 метров | 2 этажа | гараж | терраса - разрабатывался для нашего клиента в Ногинском районе, под газоблок.

▼ нажмите на картинку для увеличения ▼

И другие листы проекта - касающиеся инженерных коммуникаций, особенностей архитектурного решения.


В процессе архитектурного проектирования, архитектор вместе с вами перебирает и предлагает различные варианты - и вы понимаете какой из них наиболее подходит вам.

Проект индивидуального дома - архитектурное решение требуется в том числе для регистрации дома.
Наш проект - является приложением к договору строительства, и позволяет закрепить полностью и однозначно - что клиент получит после строительства дома.

Значит ли это, что этим проектированием все заканчивается? Нет. Если клиент решает двигаться и строить дом с нами, к проекту подключаются конструктора, которые формируют конструктивные проекты фундамента и дома. Размер этих проектов многократно превышает размер первоначального архитектурного проекта.
Стоимость этих проектов уже заложена в наши комплектации или при произведении индивидуального расчета, и отдельное согласование стоимости не требуется.


Смета на каркасный дом

укажите пожелания и ПОДБЕРИТЕ дом

Укажите свою почту или телефон, пожелания по проекту. 
ДАВАЙТЕ НАЧНЕМ СОЗДАВАТЬ ВАШ ДОМ ПРЯМО СЕЙЧАС
ИНДИВИДУАЛЬНОЕ ПРОЕКТИРОВАНИЕ 35 000 РУБЛЕЙ

ПРОДОЛЖИТЬ

CRM-Форма в сплывающем окне Выберите этот блок в качестве ссылки любой кнопки


ПРОЕКТ ДОМ ИЗ ГАЗОБЛОКА | ПРОЕКТ КАРКАСНОГО ДОМА - А ЗАЧЕМ?

Дом - это дорого. Да, да вы не ослышались. Каждый метр площади дома с учетом отделки и обстановки стоит гораздо больше 50'000 рублей. А теперь представьте - что часть этих метров, пусть даже всего несколько не оптимально скроена, или не используется. Сколько таких неоптимальных метров - 2....5...10?
Значит вместо очередного отдыха на юге, или лучшей машины деньги потрачены не оптимально?

Большинство наших клиентов проходят этап архитектурного проектирования своего дома.
Здесь есть распространенная ловушка - существующие на рынке предложения от строительных компаний - «привязывают» клиента к себе - да проектирование бесплатное, если вы заключите сразу договор и оплатите 100'000 рублей, или 3% от стоимости строительства.
После получения проекта, вы конечно, сможете выбирать строительную компанию, но груз потери вложенных средств, и обещание скидки, довлеют над вашим решением. Вероятно, что это лишь словесная скидка.
С другой стороны - архитектурные мастерские, которые только проектируют, берут за услуги проектирования тоже не малые средства - от 700 рублей за м ²
За вас мы организовали лучшую цену за проектирование индивидуального дома на рынке.

Мы хотим, чтобы вы построили дом, который представляли как свое «Я», каждым метром которого гордились - «Мой дом это Я» - это постулат для нас, для строительной компании «Я Мой Дом».

BIM-МОДЕЛЬ

Значительная часть наших заказчиков, получают BIM-модель, для оценки внутреннего пространства дома. Приводим, несколько изображений, взятых с такой модели для проекта СТОУН ДОМ🔎

BIM-модель это архитектурный файл - открывается небольшой программой BIMx Viewer для настольных компьютеров. Клиент открыв программой BIM-файл, попадает в свой дом, и может как в компьютерной трехмерной игре, походить по комнатам своего будущего дома, "полетать" над ним, оценить ширину проходов и размер комнат.


УЖЕ СДЕЛАЛИ ПРОЕКТ?

Уже есть проект? Заказывали проект в другой компании, но еще не приняли решение. Вы не должны платить за проект дважды - мы внесем изменения в проект за свой счет - изменим планировку | фасадные решения | оптимизируем проект под свою технологию строительство.

Наше решение - брать на себя затраты связанные с проектированием - если клиент сделал проект в другой компании, но решил в итоге строить дом с нами. Мы доработаем проект - еще раз вместе с клиентом пройдемся по планировке и внешнему виду - улучшим проект своими идеями. Превратим проект в свою модель с которой будем работать.
При этом сделаем эту работу бесплатно. 

РАБОЧИЙ КОНСТРУКТИВНЫЙ ПРОЕКТ

Строить дом без подробного проекта - ошибка. Проект нужен нам для четкой организации работы - на дом, фундамент. Мы не учитываем стоимость его разработки при определении цены объекта, так как считаем, что это наши затраты по строительству - клиенты не оплачивают указанные документы.

У нас есть четкое разделение - архитектор который работает с клиентом и конструктор, который скрупулёзно разрабатывает глубокое техническое решение. В рабочем проекте, указаны все типовые узлы - по многим из них выполнены расчеты - мы берем на себя полный цикл ответственности за итог строительства дома. 

Мы проектируем любой индивидуальный дом площадью до 1000 м2 и числом этажей до 3х (4х если есть цокольный этажа).

Качество наших проектных конструктивных решений по фундаментам | домов из газоблока | каркасных домов | домов из теплой строительной керамики | монолитных ЖБ решений - дом, плиты, плоские кровли - отвечают самым современным и жестким параметрам подготовки технической документации в строительстве.

Качество наших проектных решений позволяет нам браться за проектирование и строительство самых сложных и интересных индивидуальных проектных решений.

КАРКАСНЫЙ ДОМ
ПОД КЛЮЧ
КАРКАСНЫЙ ДОМ ПОД КЛЮЧ - СНИП
ПО ЗАПРОСУ
дом из газоблока цена
ПОД ОТДЕЛКУ
ДОМ ИЗ ГАЗОБЕТОНА ПОД ОТДЕЛКУ
от 45 500 ₽ за м²
под отделку премиум
ДОМ ИЗ ГАЗОБЛОКА ПОД ОТДЕЛКУ ПРЕМИУМ
ОТ 45 500 ₽ ЗА М²
дом из блоков керамики поротерм
как мы строим
ДОМ ИЗ БЛОКА КЕРАМИКИ ПОРОТЕРМ
ОТ 45 500 ₽ ЗА М²
Когда строить дом
зимой дешевле
акции и скидки
этапы работ Я Мой Дом по строительству
ЭТАПЫ РАБОТ
как обычно строиться работа
ПОРЯДОК ДЕЙСТВИЙ

Cookie-файлы
Настройка cookie-файлов
Детальная информация о целях обработки данных и поставщиках, которые мы используем на наших сайтах
Аналитические Cookie-файлы Отключить все
Технические Cookie-файлы
Другие Cookie-файлы
Нажимая на кнопку, я принимаю условия соглашения. Подробнее о нашей политике в отношении Cookie.
Понятно Подробнее
Cookies