Строительство Проектирование загородных домов из газобетона, керамоблоков   КОМФОРТ+  класса 
РАССЧИТАТЬ СМЕТУ ЛЮБОГО ПРОЕКТА

Проект СОЛНЕЧНЫЙ 124 м²| СТРОИТЕЛЬСТВО ДОМА | КАРКАС | ГАЗОБЛОК от 3.553.000 ₽

Дом с оптимальным соотношением стоимости за квадратный метр площади. Является популярным и распространённым проектом. Этот дом можно построить из газосиликатного блока Бонолит | Итонг, блока теплой керамики Поротерм, или по каркасной технологии.

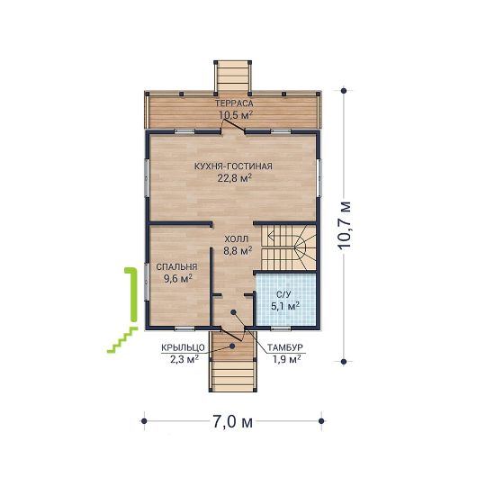
На визуализации показана терраса и балкон. Эти площади можно включить в площадь дома. В доме два санузла и четыре отдельные комнаты.
Солнечный дом
Сол Дом
Каркасный дом Солнечный
Солнечный каркасный дом 1
Солнечный каркасный дом 2
Солнечный дом
Сол Дом
Каркасный дом Солнечный
Солнечный каркасный дом<p><div class="landing-ui-field-image-make-as-link-wrapper" style="box-sizing: border-box;"><div class="landing-ui-field-image-make-as-link-button" style="box-sizing: border-box;"></div><div class="landing-ui-field landing-ui-field-link" data-selector="hlc2sb5e" style="box-sizing: border-box; font-family: &quot;Helvetica Neue&quot;, Helvetica, Arial, sans-serif; margin-bottom: 17px; font-weight: normal;"><div class="landing-ui-field-header" style="box-sizing: border-box; color: rgb(130, 139, 149); font-size: 14px; margin-bottom: 4px; line-height: 17px; font-family: &quot;Helvetica Neue&quot;, Helvetica, Arial, sans-serif; font-style: normal; font-variant-ligatures: normal; font-variant-caps: normal; font-weight: 400; letter-spacing: normal; orphans: 2; text-align: left; text-indent: 0px; text-transform: none; white-space: normal; widows: 2; word-spacing: 0px; -webkit-text-stroke-width: 0px; background-color: rgb(255, 255, 255); text-decoration-style: initial; text-decoration-color: initial;"></div><div class="landing-ui-field-link-wrapper" style="box-sizing: border-box; display: flex; flex-wrap: wrap; color: rgb(119, 119, 119); font-family: &quot;Helvetica Neue&quot;, Helvetica, Arial, sans-serif; font-size: 15px; font-style: normal; font-variant-ligatures: normal; font-variant-caps: normal; font-weight: 400; letter-spacing: normal; orphans: 2; text-align: left; text-indent: 0px; text-transform: none; white-space: normal; widows: 2; word-spacing: 0px; -webkit-text-stroke-width: 0px; background-color: rgb(255, 255, 255); text-decoration-style: initial; text-decoration-color: initial;"><div class="landing-ui-field-link-center" style="box-sizing: border-box; flex-grow: 1; width: 392px; padding-bottom: 0px;"><div class="landing-ui-field landing-ui-field-link-url" data-selector="hlc2sb5e" style="box-sizing: border-box; font-family: &quot;Helvetica Neue&quot;, Helvetica, Arial, sans-serif; margin-bottom: 0px; font-weight: normal; position: relative;"></div></div></div></div></div></p><fo rm method="post" enctype="multipart/form-data" class="landing-ui-field-image-container" style="box-sizing: border-box; margin: 0px; padding: 0px; display: flex;"><div class="landing-ui-field-image-right" style="box-sizing: border-box; display: flex; flex-direction: column;"><button type="button" class="landing-ui-button landing-ui-field-image-action-button" data-id="upload" style="box-sizing: border-box; border-radius: 2px; margin: 0px 0px 2px; font-family: OpenSans-Bold, Helvetca, Arial, sans-sarif; font-size: 12px; line-height: 32px; overflow: visible; text-transform: uppercase; -webkit-appearance: button; background: 0px center; color: rgb(82, 92, 105); border: 0px; outline: 0px; padding: 0px 10px; transition: background-color 200ms ease 0s, opacity 400ms ease 0s; cursor: pointer;"><span class="landing-ui-button-text" style="box-sizing: border-box;">ЗАГРУЗИТЬ</span></button>&nbsp;<button type="button" class="landing-ui-button landing-ui-field-image-action-button" data-id="edit" style="box-sizing: border-box; border-radius: 2px; margin: 0px 0px 2px; font-family: OpenSans-Bold, Helvetca, Arial, sans-sarif; font-size: 12px; line-height: 32px; overflow: visible; text-transform: uppercase; -webkit-appearance: button; background: 0px center; color: rgb(82, 92, 105); border: 0px; outline: 0px; padding: 0px 10px; transition: background-color 200ms ease 0s, opacity 400ms ease 0s; cursor: pointer;"><span class="landing-ui-button-text" style="box-sizing: border-box;">ИЗМЕНИТЬ</span></button></div></form>
Солнечный каркасный дом&lt;p&gt;&lt;div class="landing-ui-field-image-make-as-link-wrapper" style="box-sizing: border-box;"&gt;&lt;div class="landing-ui-field-image-make-as-link-button" style="box-sizing: border-box;"&gt;&lt;/div&gt;&lt;div class="landing-ui-field landing-ui-field-link" data-selector="hlc2sb5e" st yle="box-sizing: border-box; font-family: &amp;quot;Helvetica Neue&amp;quot;, Helvetica, Arial, sans-serif; margin-bottom: 17px; font-weight: normal;"&gt;&lt;div class="landing-ui-field-header" st yle="box-sizing: border-box; color: rgb(130, 139, 149); font-size: 14px; margin-bottom: 4px; line-height: 17px; font-family: &amp;quot;Helvetica Neue&amp;quot;, Helvetica, Arial, sans-serif; font-style: normal; font-variant-ligatures: normal; font-variant-caps: normal; font-weight: 400; letter-spacing: normal; orphans: 2; text-align: left; text-indent: 0px; text-transform: none; white-space: normal; widows: 2; word-spacing: 0px; -webkit-text-stroke-width: 0px; background-color: rgb(255, 255, 255); text-decoration-style: initial; text-decoration-color: initial;"&gt;&lt;/div&gt;&lt;div class="landing-ui-field-link-wrapper" st yle="box-sizing: border-box; display: flex; flex-wrap: wrap; color: rgb(119, 119, 119); font-family: &amp;quot;Helvetica Neue&amp;quot;, Helvetica, Arial, sans-serif; font-size: 15px; font-style: normal; font-variant-ligatures: normal; font-variant-caps: normal; font-weight: 400; letter-spacing: normal; orphans: 2; text-align: left; text-indent: 0px; text-transform: none; white-space: normal; widows: 2; word-spacing: 0px; -webkit-text-stroke-width: 0px; background-color: rgb(255, 255, 255); text-decoration-style: initial; text-decoration-color: initial;"&gt;&lt;div class="landing-ui-field-link-center" style="box-sizing: border-box; flex-grow: 1; width: 392px; padding-bottom: 0px;"&gt;&lt;div class="landing-ui-field landing-ui-field-link-url" data-selector="hlc2sb5e" st yle="box-sizing: border-box; font-family: &amp;quot;Helvetica Neue&amp;quot;, Helvetica, Arial, sans-serif; margin-bottom: 0px; font-weight: normal; position: relative;"&gt;&lt;/div&gt;&lt;/div&gt;&lt;/div&gt;&lt;/div&gt;&lt;/div&gt;&lt;/p&gt;&lt;form method="post" enctype="multipart/form-data" class="landing-ui-field-image-container" style="box-sizing: border-box; margin: 0px; padding: 0px; display: flex;"&gt;&lt;div class="landing-ui-field-image-right" style="box-sizing: border-box; display: flex; flex-direction: column;"&gt;&lt;button type="button" class="landing-ui-button landing-ui-field-image-action-button" data-id="upload" style="box-sizing: border-box; border-radius: 2px; margin: 0px 0px 2px; font-family: OpenSans-Bold, Helvetca, Arial, sans-sarif; font-size: 12px; line-height: 32px; overflow: visible; text-transform: uppercase; -webkit-appearance: button; background: 0px center; color: rgb(82, 92, 105); border: 0px; outline: 0px; padding: 0px 10px; transition: background-color 200ms ease 0s, opacity 400ms ease 0s; cursor: pointer;"&gt;&lt;span class="landing-ui-button-text" style="box-sizing: border-box;"&gt;ЗАГРУЗИТЬ&lt;/span&gt;&lt;/button&gt;&amp;nbsp;&lt;button type="button" class="landing-ui-button landing-ui-field-image-action-button" data-id="edit" style="box-sizing: border-box; border-radius: 2px; margin: 0px 0px 2px; font-family: OpenSans-Bold, Helvetca, Arial, sans-sarif; font-size: 12px; line-height: 32px; overflow: visible; text-transform: uppercase; -webkit-appearance: button; background: 0px center; color: rgb(82, 92, 105); border: 0px; outline: 0px; padding: 0px 10px; transition: background-color 200ms ease 0s, opacity 400ms ease 0s; cursor: pointer;"&gt;&lt;span class="landing-ui-button-text" style="box-sizing: border-box;"&gt;ИЗМЕНИТЬ&lt;/span&gt;&lt;/button&gt;&lt;/div&gt;&lt;/form&gt;
Солнечный каркасный дом 1
ПРОЕКТ ДОМА Солнечный 1

технология строительства Каркасный Дом | Дом Из Газоблока | Бонолит

Солнечный каркасный дом 2
ПРОЕКТ ДОМА Солнечный 2

архитектурный стиль современный дом

Характеристики дома

  • Площадь дома 124,3 кв.м.
  • Площадь общая 135,5 кв.м. 
  • Этажи дома 2
  • РАЗМЕРЫ 9.5х7.0 м.
  • Высота 1-го этажа 3 м
  • Высота 2-го этажа -
  • Высота аттиковой стены 1,5 м.
  • Крыша 2х скатная, простая
  • Эркер нет


Высота этажей по желанию

Базовая планировка дома

  • Спальни 4 | Санузел 2
  • Гостиная / кухня смежные
  • Крыльцо 2,3 кв.м.
  • Балкон 10,5 кв.м.
  • Котельная нет, по заданию
  • Пом.хранения нет
  • Терраса 10,5 кв.м.
  • Веранда нет, проект бесплатно
  • Гараж нет, проект бесплатно


Этот дом можно масштабировать

Бесплатные опции этого дома

  • Расчет с изменениями 1 день
  • Изменение и перепланировка
  • Сборка дома на участке
  • Проект для регистрации дома
  • Выезд - привязка до старта
  • Охрана материалов до сдачи
  • Бытовка для рабочих
  • Гарантия до 30 лет
  • Срок строительства 30-60 дн.


Персональный руководитель проекта

Стоимость строительства дома

3.703.000 ₽

КАРКАСНЫЙ ДОМ ПОД КЛЮЧ

Дом по нормам СП31.105.2002 и CODEX (КОД) - комплектация «под обои» - все включено в капитальный и теплый дом для самых суровых зим

энергосберегающий дом под ключ

  • ВКЛЮЧЕНО В КОМПЛЕКТАЦИЮ в полном объеме ПРОЕКТ, РАБОТЫ и МАТЕРИАЛЫ: 
  • Фундамент свайный 2.5 м, механизированный способ монтажа. Обвязка 200 мм камерной сушки
  • Дом - весь пиломатериал камерной сушки: каркас дома перекрестный 200мм  перекрытия - 200х50, вентилируемая кровля 200 мм + обрешетка + контр-обрешетка.
  • Крыша металлочерепица Grand Line 0.5мм Утепление - 200 мм
  • Фасад вентилируемый                                                  Отделка - сайдинг Docke
  • Тепловой контур - гидро-ветро защитные мембраны, пароизоляция с проклейкой швов.                                       Утепление - пол, крыша, стены 200 мм, звукоизоляция - 100 мм                                  Укладка плит с перехлестом швов
  • ПВХ окна Rehau Thermo 3 стекла, отливы и откосы
  • Внутренняя отделка                                             полы - фанера 18 мм (ЦСП под плитку во влажных помещениях);                                        стены и потолок - гипсокартон 12.5 мм
  • Вентиляция -  с выводом через крышу вытяжная из кухни и с/у

3.553.000 ₽

ДОМ ИЗ ГАЗОБЛОКОВ ПОД ОТДЕЛКУ

Дом по СНИП, из газобетона 300 мм - комплектация «под отделку», фундамент ЖБ ростверк, межэтажное монолитное перекрытие

каменный дом по СНИП под отделку

  • ВКЛЮЧЕНО В КОМПЛЕКТАЦИЮ в полном объеме ПРОЕКТ, РАБОТЫ и МАТЕРИАЛЫ: 
  • Фундамент - ленточный монолитный ЖБ фундамент, шириной 300 мм, высотой 400 мм. 
  • Наружные стены - газобетонный блок 300 мм
  • Внутренние несущие стены - газобетонный блок 250 мм.
  • Перегородки - отсутствуют
  • Перекрытие межэтажное - монолитное железобетонное 200 мм с армированием на двух уровнях: арматура А3 д.12 мм с шагом ячейки 200 м
  • Монолитный железобетонный армопояс, сечением 250х250 мм под стропильную систему кровли
  • Вентилируемая кровля 200 мм + обрешетка + контр-обрешетка. 
  • Крыша металлочерепица Grand Line 0.5мм Утепление - 200 мм
  • Тепловой контур - гидро-ветро защитные мембраны, пароизоляция с проклейкой швов. Утепление -  крыша 200 мм.                                Укладка плит с перехлестом швов
  • Вентиляция - с выводом через крышу вытяжная из кухни и с/у
  • Особенности строительства дома:               Бетон заводского изготовления М350;   Высокопрочная арматура d12 мм класса АIII;
    Газобетонные (газосиликатные) блоки укладываются на специальный кладочный клей - тонкошовная кладка 2-3 мм;
    Армирование кладки каждые 3 ряда;

4.935.000 ₽

ДОМ ПОД ОТДЕЛКУ ПРЕМИУМ

Дом по СНИП, из газобетона Bonolit 400мм -  «под отделку  - премиум», фундамент утепленная плита, окна, монолитное перекрытие

каменный дом по СНИП ПРЕМИУМ

  • ВКЛЮЧЕНО В КОМПЛЕКТАЦИЮ в полном объеме ПРОЕКТ, РАБОТЫ и МАТЕРИАЛЫ: 
  • Фундамент - Монолитная ж/б плита, толщина 250-300 мм согласно проекту 
  • УТЕПЛЕНИЕ ПЛИТЫ СНАРУЖИ - экструдированный пенополистирол 100мм, для защиты фундамента от морозного пучения грунта
  • Закладные - для канализации, воды и электричества
  • Наружные стены - газобетонный блок 400 мм
  • Внутренние несущие стены - газобетонный блок 250 мм.
  • Перегородки - газобетонный блок 100 мм
  • Перекрытие межэтажное - монолитное железобетонное 200 мм с армированием на двух уровнях: арматура А3 д.12 мм с шагом ячейки 200 мм  
  • Монолитный железобетонный армопояс, сечением 250х250 мм под стропильную систему кровли  
  • Вентилируемая кровля 200 мм + обрешетка + контр-обрешетка. 
  • Крыша металлочерепица Grand Line 0.5мм Утепление - 200 мм
  • Тепловой контур - гидро-ветро защитные мембраны, пароизоляция с проклейкой швов. Утепление - крыша 200 мм.                                  Укладка плит с перехлестом швов
  • ПВХ окна Rehau Grazio 70мм, толщина стеклопакет 40 мм, отливы и откосы
  • Вентиляция - с выводом через крышу вытяжная из кухни, с/у и тех.помещения
  • Особенности строительства дома:
    Бетон заводского изготовления М350; Высокопрочная арматура d12 мм класса АIII; Газобетонные (газосиликатные) блоки укладываются на специальный кладочный клей - тонкошовная кладка 2-3 мм;
    Армирование кладки каждые 3 ряда; Увеличенные свесы кровли
Смета на каркасный дом

Получить подробную смету и спецификацию дома

Укажите свою почту или телефон, для получения подробной сметы этого дома, в одной из комплектаций строительства.

ПОЛУЧИТЬ

CRM-Форма в сплывающем окне Выберите этот блок в качестве ссылки любой кнопки


КАРКАСНЫЙ ДОМ
ПОД КЛЮЧ
КАРКАСНЫЙ ДОМ ПОД КЛЮЧ - СНИП
от 30 000 ₽ за м²
дом из газоблока цена
ПОД ОТДЕЛКУ
ДОМ ИЗ ГАЗОБЕТОНА ПОД ОТДЕЛКУ
от 30 500 ₽ за м²
под отделку премиум
ДОМ ИЗ ГАЗОБЛОКА ПОД ОТДЕЛКУ ПРЕМИУМ
ОТ 35 000 ₽ ЗА М²
дом из блоков керамики поротерм
как мы строим
ДОМ ИЗ БЛОКА КЕРАМИКИ ПОРОТЕРМ
ОТ 37 500 ₽ ЗА М²
Когда строить дом
зимой дешевле
акции и скидки
этапы работ Я Мой Дом по строительству
ЭТАПЫ РАБОТ
как обычно строиться работа
ПОРЯДОК ДЕЙСТВИЙ

ИзменИТЕ и дополнИТЕ ДОМ


ПОЛНЫЙ КАТАЛОГ ДОМОВ ИЗ ГАЗОБЕТОНА
ПОЛНЫЙ КАТАЛОГ ДОМОВ
ВСЕ ТИПОВЫЕ ПРОЕКТЫ ДОМОВ
ПРОЕКТЫ ТИПОВЫЕ
ПОЛНЫЙ КАТАЛОГ ДОМОВ ИЗ ГАЗОБЕТОНА
ТИПОВЫЕ ДОМА ОДНОЭТАЖНЫЕ
ВСЕ ТИПОВЫЕ ПРОЕКТЫ ДОМОВ
ОДНОЭТАЖНЫЕ ДОМА
ПОЛНЫЙ КАТАЛОГ ДОМОВ ИЗ ГАЗОБЕТОНА
ТИПОВЫЕ ДОМА 2 этажа | маНСАРДНЫЕ
ВСЕ ТИПОВЫЕ ПРОЕКТЫ ДОМОВ
ДВУХЭТАЖНЫЕ МАНСАРДНЫЕ

Мало времени? Задайте вопросы сразу - мы на связи ежедневно - с 8-ми утра и до 22-х часов вечера


Cookie-файлы
Настройка cookie-файлов
Детальная информация о целях обработки данных и поставщиках, которые мы используем на наших сайтах
Аналитические Cookie-файлы Отключить все
Технические Cookie-файлы
Другие Cookie-файлы
Нажимая на кнопку, я принимаю условия соглашения. Подробнее о нашей политике в отношении Cookie.
Понятно Подробнее
Cookies